В данном проекте по обеспечению систем для промышленных альпинистов перед нами была поставлена дополнительная не простая задача. Система должна вписываться в архитектурный замысел павильона и иметь максимально скрытую установку.
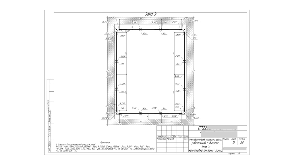
Предложенное решение состояло из двух систем. Горизонтальные анкерные линии, установленные по периметру каждой зоны, которые позволяют промышленным альпинистам попадать в любую точку поверхности стен, а также с применением дополнительных ферм безопасно работать по обслуживанию потолочных коммуникаций и системы вертикальных анкерных линий, установленных в нужных местах для выхода на горизонтальные линии.
Вертикальные анкерные линии
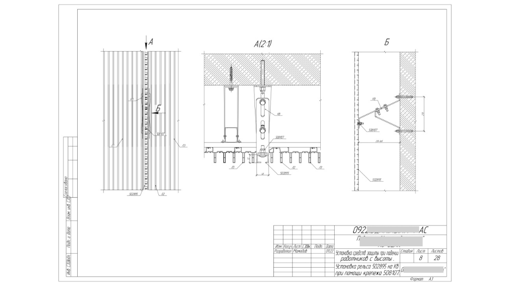
Нам удалось реализовать скрытую установку вертикальных систем, которые идеально вписались в интерьер помещения. Для этого мы придумали способ их установки в вертикальную полость между ламелями поверхности стен. Вертикальные профили мы покрасили в цвет, который позволил им быть совершенно незаметными в структуре декоративного покрытия. Эта система позволила обеспечить максимально эффективный и безопасный способ организации страховочной системы.Для обеспечения системы позиционирования (для работы в безопорном пространстве должны быть обеспечена как страховочная система, так и позиционирующая) в профиль каждой линии мы установили канат (закрепив его в верхней точке на анкерное устройство), позволяющий осуществлять подъём специалиста. При начале работы канат достаётся из профиля и используется для подъёма. В качестве страховочной системы при этом используется анкерная линия.

Для установки профилей анкерных линий таким образом нам пришлось разработать универсальные кронштейны крепления к стенам, которые позволили установить профили анкерной линии с максимальной точностью, добившись того, что они расположились заподлицо с декоративными панелями.


Производитель анкерных линий для реализации вертикальных систем — Tractel.
Горизонтальные анкерные линии
Для реализации горизонтальных систем, обеспечивающих перемещение специалистов по фасадам с обеспечение непрерывной страховки и закрепления систем доступа (рабочих канатов) мы выбрали жёсткую анкерную линию на базе дюралюминиевого профиля марки Delta Plus Altirail. Анкерные линии были установлены в полости между декоративным потолком и стенами. Нам удалось максимально скрыть профили в теневой зоне и они увидеть их можно только приглядевшись.Специалист поднявшись по вертикально системе переходит на горизонтальные линии с установленными на них каретками и может перемещаться в любую зону производства работ.

Для точного позиционирования профилей анкерной линии мы разработали регулируемые консоли крепления к потолку. Таким образом мы смогли установить проектную точность расположения линий.

Анкерные линии, установленные по периметру позволили разработать план производства работ не только по обслуживанию стен, но и потолочных поверхностей и оборудования, на них установленных. Использование силовых сценических ферм, закреплённых на анкерных устройствах линий позволяет обеспечить доступ специалиста в любую точку потолка бех потери безопасности, которую обеспечивает страховочная система.
Все работы по монтажу системы были выполнены в срок и сданы в эксплуатацию.
Итоги реализации
Достигнутые результаты:- соблюдены требования безопасности согласно нормативам работ на высоте;
- обеспечена полная функциональность для всех видов работ на стенах и потолке;
- реализовано скрытое размещение систем, не нарушающее архитектурный облик;
- выполнен монтаж в установленные сроки;
- система сдана в эксплуатацию с полным комплектом документации.
